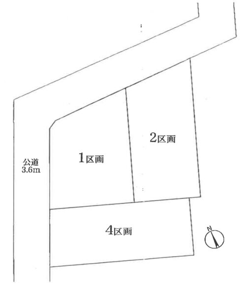
◆3区画建築条件なし♪お好きなハウスメーカーで建てられます
◆JR「明石駅」徒歩13分、山陽電鉄も利用でき、便利な2WAYアクセス
◆スーパー・小学校近く、生活便利です
【おすすめポイント】
〇フラット35S対応物件です
〇新快速停車駅「明石駅」が徒歩圏内♪
〇建築条件なしなので、お好きなハウスメーカーで建てられます。
〇フラット35S対応物件です
〇新快速停車駅「明石駅」が徒歩圏内♪
〇建築条件なしなので、お好きなハウスメーカーで建てられます。
【周辺環境】
●マックスバリュ茶園場店…徒歩3分
●DCMダイキ 明石店…徒歩4分
●明石公園…徒歩2分
●ミニストップ 明石鷹匠町店…徒歩2分
●マックスバリュ茶園場店…徒歩3分
●DCMダイキ 明石店…徒歩4分
●明石公園…徒歩2分
●ミニストップ 明石鷹匠町店…徒歩2分





















